予星公司自行监测方案
2025-01-20 来自: 新乡市日月星金属有限公司 浏览次数:128
新乡市日月星金属有限公司
自
行
监
测
方
案
2025年1月
一、企业概况
新乡市日月星金属有限公司位于新乡市凤泉区大块镇块村营村东南。属于铜冶炼及压延加工行业。拥有国内先进的生产设备和治污设施,共两条生产线。主要生产产品设计年产能6.5万吨粗铜。受该公司委托,依据该公司排污许可证自行监测要求制定本次检测方案。
二、生产工艺
3.1生产工艺流程简介:原料配比—熔炼—精炼—产品。
(1) 配料
评估工程所需原料主要为废铜渣、废杂铜、石英石、焦炭等,由汽车运至原料库房,按比例称量配比后,由自动送料机斗送至炉顶料仓,炉料经定量给料机加入炉内进行冶炼。
(2) 熔炼
铜炉料、熔剂和焦炭从熔炉上部加料口分批加入,靠其自身重力垂直向下移动,炉身下部两侧鼓入富氧空气进行半自热熔炼,在炉内高温下发生各种反应,而达到熔炼目的。熔炼产出的混合熔体进入炉底,通过本床咽喉流入设于炉外的前床内进行铜锍与炉渣的澄清分离。铜锍按转炉吹炼的需要间断放出;炉渣连续排放,通过水淬处理形成水淬渣后流入沉渣池, 水淬渣由铲车进行装车,作为建筑材料外售。产出的高温烟气,通过炉内料柱的空隙上升,经炉顶排烟口进入排烟收尘装置。
(3) 精炼
精炼过程采用转炉吹炼,间断操作。为便于铜锍运输,转炉与鼓风炉垂直配置,鼓风炉前床与转炉配置于同一跨度内。将液态铜加入转炉升温或固态铜料加入炉内熔化,然后向铜液中鼓入氧气氧化,使杂质挥发、造渣;扒出炉渣后用焦炭覆盖铜液表面,以防再氧化。精炼后可铸成电解精炼所用的铜阳极或铜锭。冷却后即成可销售产品。精炼炉渣含铜较高,可返回熔炼炉处理。
3.2生产工艺流程及产污环节见图 1-1。

图1-1 生产工艺流程及产污环节图
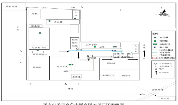
三、检测点位及示意图

图2 新乡市予星有色金属有限公司监测点位示意图
四、检测内容
检测类别 | 检测点位 | 检测项目 | 标准限值 | 检测频次 | 执行标准 |
有组织废气 | DA001烟囱排放口 | 锑 | 1mg/m3 | 1次/季度 | 再生铜、铝、铅、锌工业污染物排放标准GB31574-2015,大气污染物综合排放标准GB16297-1996 |
砷 | 0.4 mg/m3 | 1次/月 | |||
镉 | 0.05 mg/m3 | 1次/月 | |||
铬 | 1mg/m3 | 1次/季度 | 再生铜、铝、铅、锌工业污染物排放标准GB31574-2015,大气污染物综合排放标准GB16297-1996 | ||
铅 | 2 mg/m3 | 1次/月 | 再生铜、铝、铅、锌工业污染物排放标准GB31574-2015,大气污染物综合排放标准GB16297-1996 | ||
锡 | 1 mg/ m3 | 1次/季度 | |||
二噁英 | 0.5ng/TEQm3 | 1次/年 | 再生铜、铝、铅、锌工业污染物排放标准GB31574-2015,大气污染物综合排放标准GB16297-1996 | ||
氮氧化物 | 100 mg/m3 | 自动 | 再生铜、铝、铅、锌工业污染物排放标准GB31574-2015,大气污染物综合排放标准GB16297-1996 | ||
二氧化硫 | 100 mg/m3 | 再生铜、铝、铅、锌工业污染物排放标准GB31574-2015,大气污染物综合排放标准GB16297-1996 | |||
低浓度颗粒物 | 10 mg/m3 | 再生铜、铝、铅、锌工业污染物排放标准GB31574-2015,大气污染物综合排放标准GB16297-1996 | |||
无组织废气 | 上风向1个参照点位,下风向3个监控点位 | 锑 | 0.01mg/m3 | 1次/季度 | 再生铜、铝、铅、锌工业污染物排放标准GB31574-2015,大气污染物综合排放标准GB16297-1996 |
无组织废气 | 上风向1个参照点位,下风向3个监控点位 | 砷 | 0.01mg/m3 | 1次/季度 | 再生铜、铝、铅、锌工业污染物排放标准GB31574-2015,大气污染物综合排放标准GB16297-1996 |
镉 | 0.0002mg/m3 | 1次/季度 | 再生铜、铝、铅、锌工业污染物排放标准GB31574-2015,大气污染物综合排放标准GB16297-1996 | ||
铬 | 0.006mg/m3 | 1次/季度 | 再生铜、铝、铅、锌工业污染物排放标准GB31574-2015,大气污染物综合排放标准GB16297-1996 | ||
铅 | 0.006mg/m3 | 1次/季度 | 再生铜、铝、铅、锌工业污染物排放标准GB31574-2015,大气污染物综合排放标准GB16297-1996 | ||
锡 | 0.24mg/m3 | 1次/季度 | 再生铜、铝、铅、锌工业污染物排放标准GB31574-2015,大气污染物综合排放标准GB16297-1996 | ||
噪声 | 厂界四周外1米处 | 工业企业厂界环境噪声 | 昼间60dB(A) 夜间60dB(A) | 1次/季度 | 《工业企业厂界环境噪声排放标准》(GB 12348-2008)表1中2类 |
表1检测内容一览表
五、采样和样品保存方法
5.1有组织废气:有组织废气按照各标准方法及《固定污染源排气中颗粒物和气态污染物采样方法》(GB/T 16157-1996)中相关要求行进颗粒物和气体污染物的采样,在采样前后对仪器进行流量、标准气体的校准;
5.2无组织废气:无组织废气按照《大气污染物无组织排放监测技术导则》(HJ/T 55-2000)中采样布点要求进行采样。
5.3噪声按照《工业企业厂界环境噪声排放标准》(GB 12348-2008)中规定,进行点位布设,采样前后对噪声仪进行校准。
六、检测分析方法及来源
表2检测分析方法一览表
检测项目 | 检测分析方法 | 使用仪器 | 检出限 | |
有组织废气 | 砷 | 环境空气和废气 颗粒物中砷、硒、 铋、锑的测定 原子荧光法 HJ 1133-2020 | 崂应3012H型自动烟尘/气测试仪 AFS-8220型原子荧光光度计 | 0.1μg/m3 |
镉 | 大气固定污染源 镉的测定 石墨炉原子吸收分光光度法 HJ/T 64.2-2001 | 崂应3012H型 自动烟尘/气测试仪 TAS-990AFG型 原子吸收分光光度计 | 3×10-8mg/m3 | |
铅 | 固定污染源废气 铅的测定 火焰原子吸收分光光度法 HJ 685-2014 | 崂应3012H型 自动烟尘/气测试仪 TAS-990AFG型 原子吸收分光光度计 | 1.0×10-2mg/m3 | |
锑 | 空气和废气 颗粒物中铅等金属元素的测定 电感耦合等离子体质谱法 HJ 657-2013及修改单 | 崂应3012H型 自动烟尘/气测试仪 iCAP RQ型电感耦合等离子体质谱仪 | 0.02 mg/m3 | |
铬 | 0.3mg/m3 | |||
锡 | 大气固定污染源 锡的测定 石墨炉原子吸收分光光度法 HJ/T 65-2001 | 崂应3012H型 自动烟尘/气测试仪 TAS-990AFG型 原子吸收分光光度计 | 3×10-3μg/m3 | |
二氧化硫 | 固定污染源废气二氧化硫的测定定电位电解法 HJ 57-2017 | 崂应3012H型 自动烟尘/气测试仪 | 3mg/m3 | |
氮氧化物 | 固定污染源废气氮氧化物的测定定电位电解法 (HJ 693-2014 | 3mg/m3 (以NO2计) | ||
低浓度颗粒物 | 固定污染源废气低浓度颗粒物的测定重量法 HJ 836-2017 | 崂应3012H型 自动烟尘/气测试仪 ME55/02型 十万分之一电子天平 | 1.0mg/m3 | |
无组织废气 | 砷 | 空气和废气 颗粒物中铅等金属元素的测定 电感耦合等离子体质谱法 HJ 657-2013及修改单 | 崂应3012H型 自动烟尘/气测试仪 iCAP RQ型电感耦合等离子体质谱仪 | 0.7ng/ m3 |
镉 | 0.03ng/ m3 | |||
铅 | 0.6ng/ m3 | |||
锑 | 0.09ng/ m3 | |||
铬 | 空气和废气 颗粒物中铅等金属元素的测定 电感耦合等离子体质谱法 HJ 657-2013及修改单 | 1ng/ m3 | ||
锡 | 1ng/ m3 | |||
噪声 | 工业企业厂界环境噪声 | 工业企业厂界环境噪声排放标准GB 12348-200 | AWA5688型声级计 | / |
七、监测质量保证与质量控制
按照监测方法和技术规范的要求开展监测活动,若存在相关标准规定不明确但又影响监测数据质量的活动,可编写《作业指导书》予以明确。
编制工作流程等相关技术规定,规定任务下达和实施,分析用仪器设备购买、验收、维护和维修,监测结果的审核签发、监测结果录入发布等工作的责任人和完成时限,确保监测各环节无缝衔接。设计记录表格,对监测过程的关键信息予以记录并存档。
定期对自行监测工作开展的时效性、自行监测数据的代表性和准确性、管理部门检查结论和公众对自行监测数据的反馈等情况进行评估,识别自行监测存在的问题,及时采取纠正措施。管理部门执法监测与排污单位自行监测数据不一致的,以管理部门执法监测结果为准,作为判断污染物排放是否达标、自动监测设施是否正常运行的依据。
编制监测工作质量控制计划,选择与监测活动类型和工作量相适应的质控方法,包括使用标准物质、采用空白试验、平行样测定、加标回收率测定等,定期进行质控数据分析。
八、监测结果公开时限
1.企业可通过对外网站、报纸、广播、电视等便于公众知晓的方式公开自行监测信息。同时,应当在省级或地市级环境保护主管部门统一组织建立的公布平台上公开自行监测信息,并至少保存一年:
2.企业基础信息应随监测数据一并公布,基础信息、自行监测方案如有调整变化时,应于变更后的五日内公布新内容:
新乡市日月星金属有限公司
2025年1月